欢迎访问昆山扬帆自动化设备有限公司官方网站!
广发在线平台(中国) Contact Us

电话:86 0512 57779367
移动电话:13338053518
联系人:雷先生
传真:86 0512 57783087
网址:www.yfzdh.com
邮箱:lym@yfzdh.com
地址:江苏昆山市新浦东路188号
邮编:215316

< >

插件线、滚筒线系列

产品参数/ Product parameter

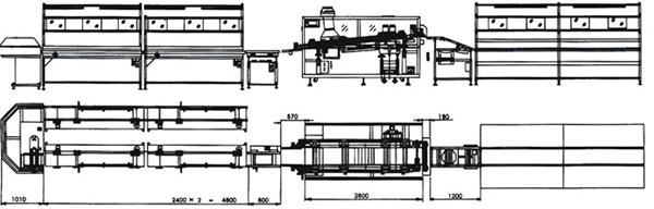
插件生产线

广泛应用于电子线路板及元器件组装的生产

滚筒线

产品类型:动滚筒、无动力滚筒、积放式滚筒

产品用途:包装纸箱、整机产品的物料输送; 采电、空调、冰箱、洗衣机等重型产品装配传输线。

产品规格:常用传动滚筒为60\50\30m。

产品参数:根据客户的要求而定


                                                                   插件生产线

上一个:没有资料
下一个:没有资料
自动化装配检测生产线以及非标准专机设备
昆山扬帆自动化设备有限公司
微信咨询号
微信咨询号
联系人:雷先生
电话:86 0512 57779367
移动电话: 13338053518
传真:86 0512 57783087
网址:www.yfzdh.com
邮箱:lym@yfzdh.com
地址:江苏昆山市新浦东路188号
版权所有:昆山扬帆自动化设备有限公司 备案号:苏ICP备20022062号-1 技术支持:仕德伟科技